This four-bedroom semi-detached home is perfect for first time buyers and young families.
Situated on a beautiful development this is the perfect place for those looking to be within touching distance of both idyllic countryside and townlife. Scartho Top is on the doorstep with Grimsby, which is a vibrant town with markets, boutique shops and a rich fishing heritage.
Inside, the ground floor boasts a welcoming hallway, a lounge, and a sleek modern kitchen-diner, complete with integrated oven appliances. A handy downstairs WC adds to the convenience.
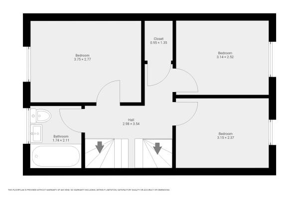
Upstairs, you'll find four well-proportioned bedrooms, plenty of space to make one of them a working from home office if needed, and a family bathroom.
All our homes are energy efficient and vinyl flooring is included in kitchens, bathrooms and WC. This home also has gas central heating and double glazing throughout.
Outside there is space for two cars to park.
The council tax bands are yet to be determined for this new build property, for more information about council tax is this area you can visit the North East Lincolnshire Council website.


