The Hareworde
Introducing The Hareworde—the ideal two-bedroom semi-detached home that blends modern comfort with scenic surroundings in the charming town of Harworth. With easy access to both town amenities and peaceful countryside, The Hareworde offers a lifestyle tailored to your needs.
Nestled in the peaceful town of Harworth, this property offers the best of both town and countryside.
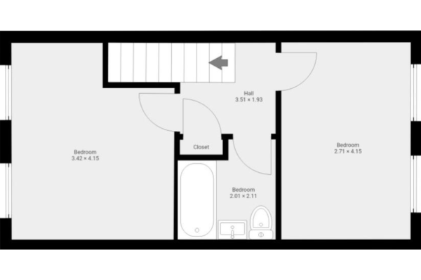
Step through the front door to find a lounge, modern fitted kitchen diner and downstairs water closet.
Upstairs you’ll find two bedrooms and a modern three-piece family bathroom.
All our homes are energy efficient and vinyl flooring is included in kitchens, bathrooms and water closets. This home also has air source heat pumps and double glazing throughout.
You’ll also find a private garden, perfect for unwinding in during the summer months, and two parking spaces.
The council tax bands are yet to be determined for this new build property, for more information about council tax in this area you can visit the Bassetlaw District Council website.


